
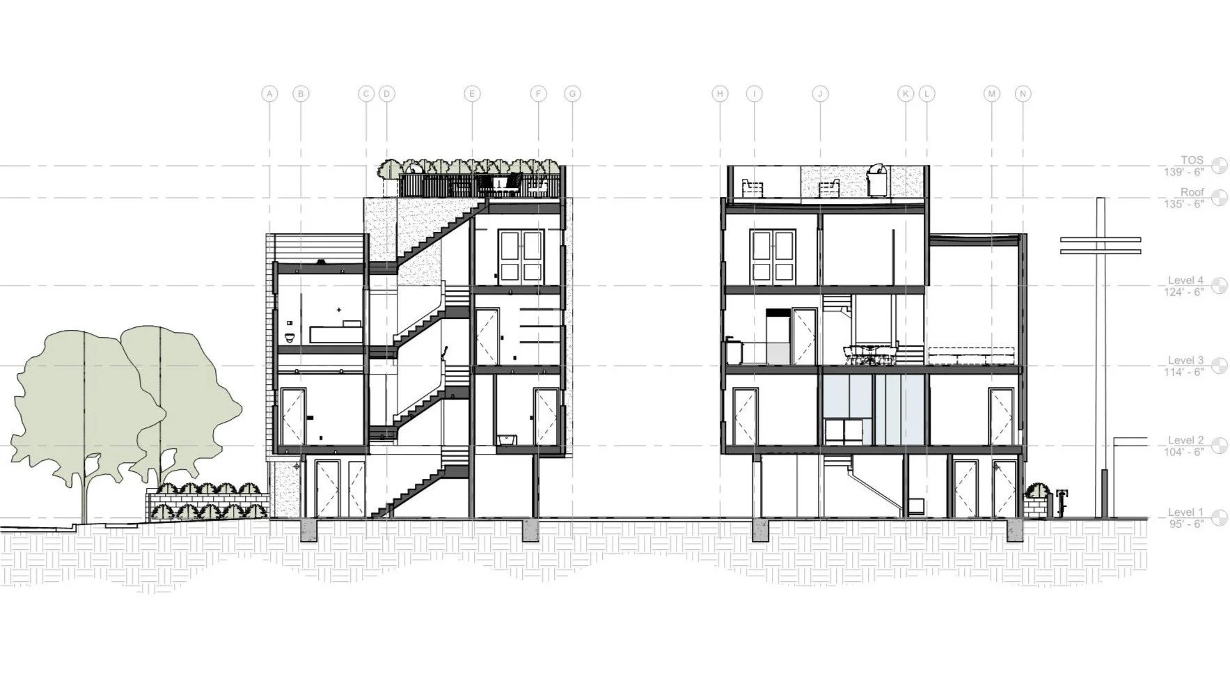
PROJECT: Smiley Townhomes
SIZE: 16 units; 1,800-2,200 SF each
SCOPE: Architectural Design
Sited in the historic West Adams neighborhood in the heart of Los Angeles, the Smiley project utilizes the Small Lot Subdivision Ordinance in Los Angeles to create 16 townhomes as part of an urban infill development. With its central location close to the metro line and the 10 Freeway, in a neighborhood which is undergoing revitalization and attracting new businesses and residents, the property is perfect for a higher density development to replace a few older 1920’s homes.


